臭氧间环境要求及安装前注意事项
1、设备应存放在干燥、清洁、通风良好的房间内。对于短期露天存放和运输时应加盖雨布,且设备不应与地面直接接触。设备间应远离尘源、腐蚀性物质源;远离高温、潮湿环境;远离振动源;房间通风采光良好。房间高度应满足设备安装维修需要。房间温度5-30℃左右,湿度<85%,避免机房内的温度过高是设备正常运行的可靠保障。设备间内禁止使用爆炸性物质、易燃气体、腐蚀性气体及有机溶剂。
2、地面坚固、平整,不易起灰尘。四壁应抹平,顶部应坚固,不得漏雨、落灰。地面很好有排水沟或排水地漏。
3、设备就位时应按照平面布置图位置摆放、找平找正。要求横向水平度不大于1mm/m,纵向水平度不大于1mm/m。水平度用水平尺找正。设备找水平可使用金属垫片调整。

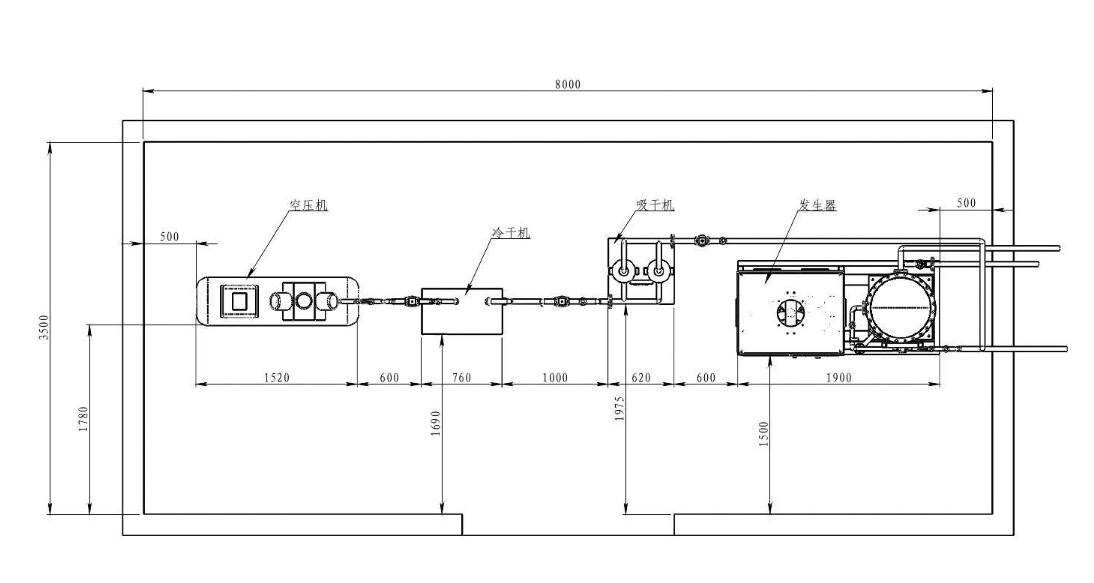
此图臭氧间尺寸仅供参考,臭氧产量不同,机器大小不同,臭氧间尺寸也不同
4、臭氧发生器及配套设备出厂时是完整设备,未经本公司许可任何人、单位不得随意拆卸设备配件、仪表阀门及管路等附件。必须保持设备的完整性。我方调试人员发现安装施工方存在以上现象时,要求安装施工方无条件复原设备,否则不予进行设备调试。
5、设备包装在就位安装时暂不拆除。除包装底座、设备接口处包装外,其余部分包装应待安装结束开始调试前拆除。避免就位安装时损伤设备外表面。
6、压缩空气管路,臭氧发生器前末级过滤器后管路、氧气和臭氧管路均采用316L材质无缝管。如果从主管道引分支供气管时,接口应安装在主管道的上部,避免将冷凝水引入设备。
7、设备间安装进气栅和通风口(通风管过长时加引风机)时应注意避免造成压缩机、冷干机冷却空气的回流。进气栅应处于墙壁下部,通风口应处于空气对流处墙壁上部。
8、空压机、冷干机、储气罐、过滤器的排水管出口不得浸入水中,冷凝水应能靠重力自然排放。
9、设备、设备与墙壁和设备之间应留有安装维修空间,管路高度应便于仪表阀门安装维修及人员穿行,发生室端口外应留足够空间便于放电体抽出维护。设备间内预留一路自来水管线,便于设备维修后的清洗。
10、设备连接管路附件标准不得低于设备管路附件,压缩空气管路法兰密封垫圈可以采用石棉垫圈,氧气及臭氧管路法兰密封垫圈采用四氟垫圈。法兰中心应与管道中心对中焊接。
11、动力电缆、高压电缆不得与信号电缆一同布置,应分开铺设,避免干扰。
12、动力电缆、气管路、水管路水平布置有交叉时应不同高度安装且保持一定距离,原则上由高至低顺序是电缆、气管路、水管路。